تفويت عقار بثمن بخس.. “العمق” تكشف فصول سطو على مرافق عمومية أطاح بعامل إنزكان
سطو وتفويت أطاح بالعامل أبو الحقوق

قبل أسابيع، جرى إعفاء إسماعيل أبو الحقوق من منصب عامل عمالة إنزكان أيت ملول، وسط حديث عن شبهات تتعلق بتضارب المصالح واستغلال النفوذ. وفي سعيها لكشف الحقيقة، تتبعت جريدة “العمق” خيوط مشروع عقاري ضخم، لتكشف عن سلسلة من الخروقات والتجاوزات التي لم تورط العامل المعفى فحسب، بل طالت جهات أخرى، وكلفت الجماعة خسارة مرافق عمومية حيوية.
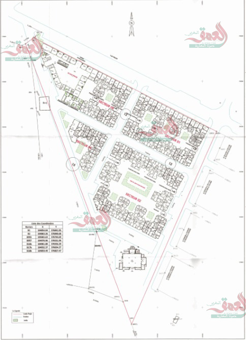
المشروع المعني، المعروف باسم تجزئة المغرب العربي بأيت ملول، كان يتضمن في تصميمه الأصلي مرافق عمومية تشمل مسجدا ومستوصفا ومكتبا للبريد وملحقة إدارية وفضاءات خضراء، غير أن الواقع على الأرض جاء مختلفا، إذ اختفت معظم هذه المرافق، وحلت محلها عمارات سكنية من صنف R+4 ضمن برنامج السكن الاجتماعي، بعد تفويت العقار لشركة وُصفت بـ”المحظوظة” بثمن بخس، ما يثير تساؤلات حول احترام المساطر القانونية والإدارية المعمول بها في تسيير التجزئات العقارية.
أصل الحكاية.. تفويت مشبوه
تعود فصول القصة إلى سنة 1992، حين جرى الترخيص لإحداث تجزئة المغرب العربي بأيت ملول، وكان يفترض أن تتولى شركة العمران إنجاز المشروع باعتبارها مالكة للعقار البالغة مساحته 28262 متر مربع (أكثر من هكتارين).
ووفق التصميم المصادق عليه ودفتر التحملات، تم تخصيص وعاء عقاري مهم لإقامة المرافق العمومية الأساسية، غير أن نزاعات نشبت مع بعض الملاك الأصليين للأراضي المدمجة في المشروع، ما أدى إلى تعطيل التنفيذ وتقسيم المشروع إلى شطرين: أحدهما سُلّم للمستفيدين، فيما ظل الآخر عالقا.

وخلال تلك المرحلة، كان من المفترض أن تقوم جماعة أيت ملول بتطبيق المواد من 37 إلى 42 من القانون رقم 25.90 المتعلق بالتجزئات العقارية، والمتصلة بالتسليم المؤقت والنهائي وتسجيل المرافق العمومية وتحفيظها باسم الجماعة، غير أنها لم تفعل، وهي الثغرة التي استُغلت لاحقا لتفويت العقار، وفق مصادر “العمق”.
وفي يناير 2014، تقدمت شركة العمران بطلب إلى اللجنة الإقليمية للاستثناءات لتحويل جزء من الوعاء العقاري المخصص للفيلات إلى عمارات من صنف R+4، فوافقت اللجنة بمقرر استثنائي مشروط بثلاثة التزامات: إيداع طلب الترخيص خلال ستة أشهر، ومباشرة الأشغال في نفس الأجل، وتوقيع اتفاقية تسليم المرافق العمومية مجانا للجماعة.
لكن بعد خمس سنوات، وتحديدا في يناير 2019، قامت شركة العمران بتفويت العقار موضوع الرسم العقاري TF82354/09 لشركة BASTIF، رغم “سقوط مقرر الاستثناء”، حسب مصدر للجريدة، موضحا أن التفويت تم “دون الرجوع إلى دفتر التحملات الأصلي أو التصميم المصادق عليه، في خرق صريح للمقتضيات القانونية والتنظيمية”.
وبحسب وثيقة تتوفر عليها “العمق”، موقعة في عهد المدير العام السابق للعمران بسوس ماسة يونس السفياني، تم بيع العقار بمبلغ 8 ملايين و244 ألف درهم، أي ما يعادل 300 درهم للمتر المربع، وهو ثمن زهيد جدا بالنظر إلى موقع العقار الواقع في المجال الحضري وقيمته السوقية.
ولرفع الغموض، تواصلت “العمق” مع المدير العام الحالي للعمران بجهة سوس ماسة، هشام الفالح، الذي لم ينف البيع بذلك الثمن، مكتفيا بالقول إن الشركة فتحت تحقيقا داخليا لدراسة جميع الوثائق المرتبطة بالملف وتحديد المسؤوليات.
مسار الترخيص.. تجاوزات بالجملة
بعد حيازتها للعقار، تقدمت شركة BASTIF سنة 2022 بطلب لإقامة مجموعة سكنية من صنف R+4 في إطار برنامج السكن الاجتماعي، رغم تخصيص العقار في تصميم 1992 للمرافق العمومية، حيث وافقت جماعة أيت ملول على الطلب، وفق ما أكده رئيسها هشام القيسوني للجريدة، وتؤكده وثائق بحوزة “العمق”.

مصادر من داخل الجماعة انتقدت قرار الرئيس، معتبرة أنه استند إلى مقرر استثنائي “ساقط” وتجاهل شروطه الفاسخة، كما رخص للمشروع رغم غياب شهادة الملكية، مما يجعل الرخصة “باطلة”، بحسب تعبيرها.
في رده على هذه الاتهامات، أقر القيسوني بأن الشركة لم تقدم ضمن وثائق طلب الترخيص بالبناء شهادة للملكية صادرة عن المحافظة العقارية، بل قدمت “عقدا موثقا رسميا مسجلا” حرره موثق، معتبرا أنه كرئيس للجماعة لم يكن يملك سندا قانونيا لرفض الطلب، خاصة وأنه استند إلى مقرر اللجنة التقنية المحلية التي يرأسها عامل الإقليم.
لكن هناك نقطة أخرى في الملف تثير الشكوك، وهي إقحام المشروع ضمن برنامج السكن الاجتماعي الذي انتهى رسميا عام 2020، وهو ما اعتبرته مصادر “العمق” “مناورة للاستفادة من الامتيازات الضريبية والتنظيمية”.
مصادر جريدة “العمق” نبهت إلى مسؤولية الوكالة الحضرية بأكادير واللجنة التقنية المحلية، مشيرة إلى أن الرخصة مرت بـ”موافقتهما”، “دون فرض مسطرة تعديل تصميم التهيئة (إعلان، بحث علني، مصادقة، نشر)، وهي شرط جوهري لإعادة تخصيص العقار”، ناهيك عن مخالفة شروط دفتر التحملات.
من جانبه أوضح القيسوني أن شركة باسطيف قامت بتوقيع “تصريح بتفويت وبصفة مجانية” لفائدة الجماعة، مع جميع الضمانات القانونية والواقعية، مجموعة من المرافق العمومية، وتضم ملحقة إدارية (251 متر مربع)، ومسجدا (563 متر مربع)، وطرقا وموقف للسيارات ومساحات خضراء، وقاعة متعددة الاستعمالات.
لكن بالعودة إلى تصميم 1992، نجد أن المرافق كانت أكبر عددا وأكثرا اتساعا بالمقارنة بما أنجز على الأرض، حيث يتضمن مكتبا للبريد (1216 متر مربع)، ومستوصفا (700 متر مربع)، ومقاطعة إدارية (1216 متر مربع)، ومسجدا تفوق مساحته 1970 متر مربع، ومحلات تجارية تابعة للمسجد (مساحتها مجتمعة 1534 متر مربع)، وطرقا ومواقف للسيارات ومساحات خضراء (تبلغ مساحتها 15319).
تسليم قبل الأوان
في 03 مارس 2025 أصدرت جماعة أيت ملول شهادة نهاية الأشغال، وقبل ذلك بأيام قليلة صدرت تقارير معاينة أيام 20 و21 و24 فبراير 2025، عن كل من اللجنة التقنية والوكالة الحضرية والجماعة، توافق بموجبها هذه للشركة على التسليم المؤقت لكن شريطة التزامها بتهيئة مساحة خضراء.
وتؤكد مصادر “العمق” أن التجهيزات الأساسية كشبكات الصرف الصحي والإنارة العمومية لم تكن قد أنجزت بعد عند تاريخ التسليم، كما أن بناء المسجد كان متأخرا. وبعد ذلك بأسبوعين، أي في تاريخ 19 مارس، صدرت شهادة المطابقة في “ظروف غير سليمة”، وهو ما يشكل “خرقا للمادة 55 من القانون 25.90”.
ولم يتوقف الأمر عند هذا الحد، بل إن شهادة المهندس المعماري المكلف، تفيد مطابقة الأشغال إلى حدود تاريخ التوقيع، بدل التصريح الصريح بانتهاء الأشغال كليا، و”هو ما يعد تضليلا للإدارة ومراوغة في صياغة المستند الفني”، كما أن اللجنة التقنية “أقرت التسليم رغم النواقص ما يجعلها طرفا في تمرير إجراء باطل”.
وإذا كان هذا الملف هو السبب المباشر في الإطاحة بعامل عمالة إنزكان أيت ملول، فمن المرجح أن تكون له تبعات قد تطال مسؤولين آخرين في إدارات مختلفة بجهة سوس ماسة، خاصة وأن القضية أصبحت الآن بين يدي غرفة الجنايات الابتدائية المكلفة بجرائم الأموال لدى محكمة الاستئناف بمراكش.
اترك تعليقاً